GL2系列磁滾紙帶過濾機
時間:2011-01-06 17:45

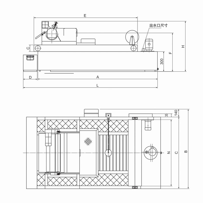
磁滾紙帶過濾機是在紙帶過濾機的基礎上,增加了磁性過濾。從而,使機床切削液實現了二級過濾。與紙帶過濾機相比,在使用性能上更佳,并減輕了過濾紙的消耗。該產品屬節能產品,同時該機造型美觀,結構緊湊,使用它可降低環境污染,提高有效工作時,減輕機床操作人員的勞動強度。
| 技術數據 | 外形尺寸(mm) | |||||||||||
| 型號 | 容積L | 流量L/min | 電機功率 | A | C | D | E | F | N | M | 入水口 | L*B*H |
| GL2-25 | 140 | 25 | 80W | 1080 | 100 | 210 | 840 | 580 | 400 | 460 | G1 1”/2 | 1300*600*757 |
| GL2-50 | 200 | 50 | 120W | 1200 | 100 | 210 | 960 | 580 | 520 | 600 | G2” | 1420*600*757 |
| GL2-75 | 250 | 75 | 1600 | 100 | 210 | 1360 | 580 | 520 | 600 | G2” | 1820*740*757 | |
| GL2-100 | 350 | 100 | 1600 | 100 | 250 | 1360 | 580 | 720 | 800 | G2 1”/2 | 1860*940*757 | |
| GL2-150 | 550 | 150 | 180W | 1800 | 120 | 250 | 1560 | 600 | 1000 | 1080 | G3” | 2060*1220*777 |
| GL2-200 | 610 | 200 | 2200 | 120 | 250 | 1960 | 600 | 1000 | 1080 | G3” | 2460*1220*777 | |
| GL2-250 | 800 | 250 | 2740 | 120 | 250 | 2500 | 600 | 1000 | 1080 | G3” | 3000*1220*777 | |

上一篇:BF系列新型紙帶過濾機 下一篇:GL3離心式過濾機
