TDF系列硅藻土過濾機
時間:2011-01-06 18:13

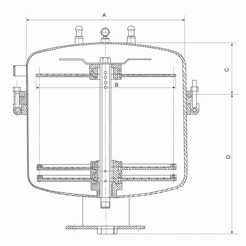
硅藻土過濾機是以硅藻土作助濾劑,主要用于精密加工機床,首先由高壓泵將臟液注入壓力罐內,臟液通過預先涂有硅藻土的過濾盤過濾后,凈液進入凈液箱備用。當濾盤上的硅藻土被雜質堵塞后,罐內壓力升高。當升到規定的壓力后就需要將濾盤上的硅藻土清洗掉,重新涂上新的硅藻土,開始新一輪過濾。過濾精度能達到1-10μm。它被廣泛的應用于化工、制藥、食品以及當前的冶金行業。
| 型號 | A | B | C | D |
| TCF50 | φ500 | φ400 | 200 | 450 |
| TCF100 | φ610 | φ500 | 200 | 540 |

上一篇:YTDF精密硅藻土過濾機 下一篇:GL5系列鼓形紙帶過濾機
